Steel tower with equipment supports
Telecom design
Time: 43h
Structure LOD: 400
Equipment LOD: 500
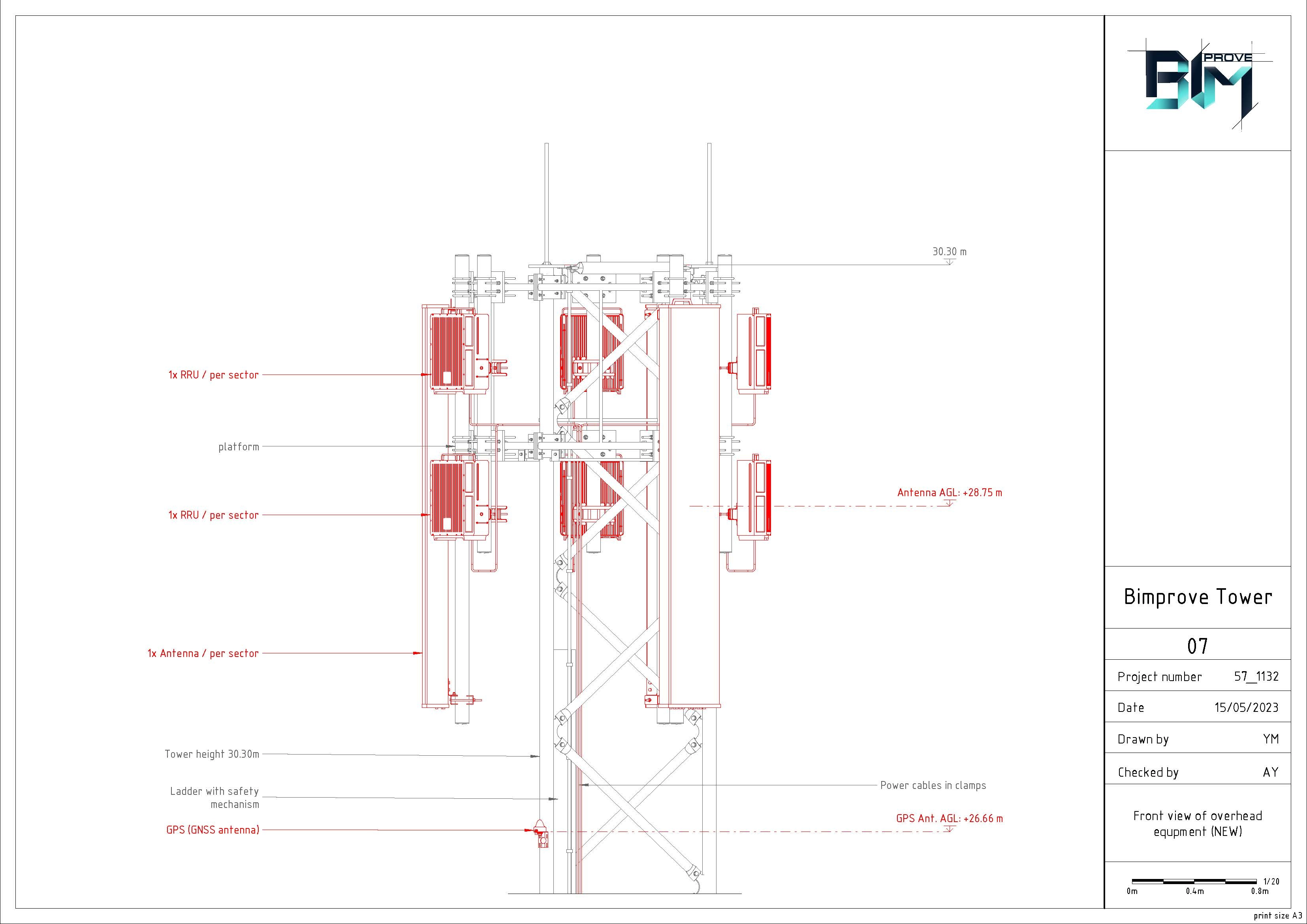
Modeling of the tower with equipment supports at the top. Analytical model. Equipment. Cable trays. Safety objects. The area around the tower
Telecom design
Time: 43h
Structure LOD: 400
Equipment LOD: 500
Modeling of the tower with equipment supports at the top. Analytical model. Equipment. Cable trays. Safety objects. The area around the tower